Inicio
Compartir
Fernando Garcia y Santos
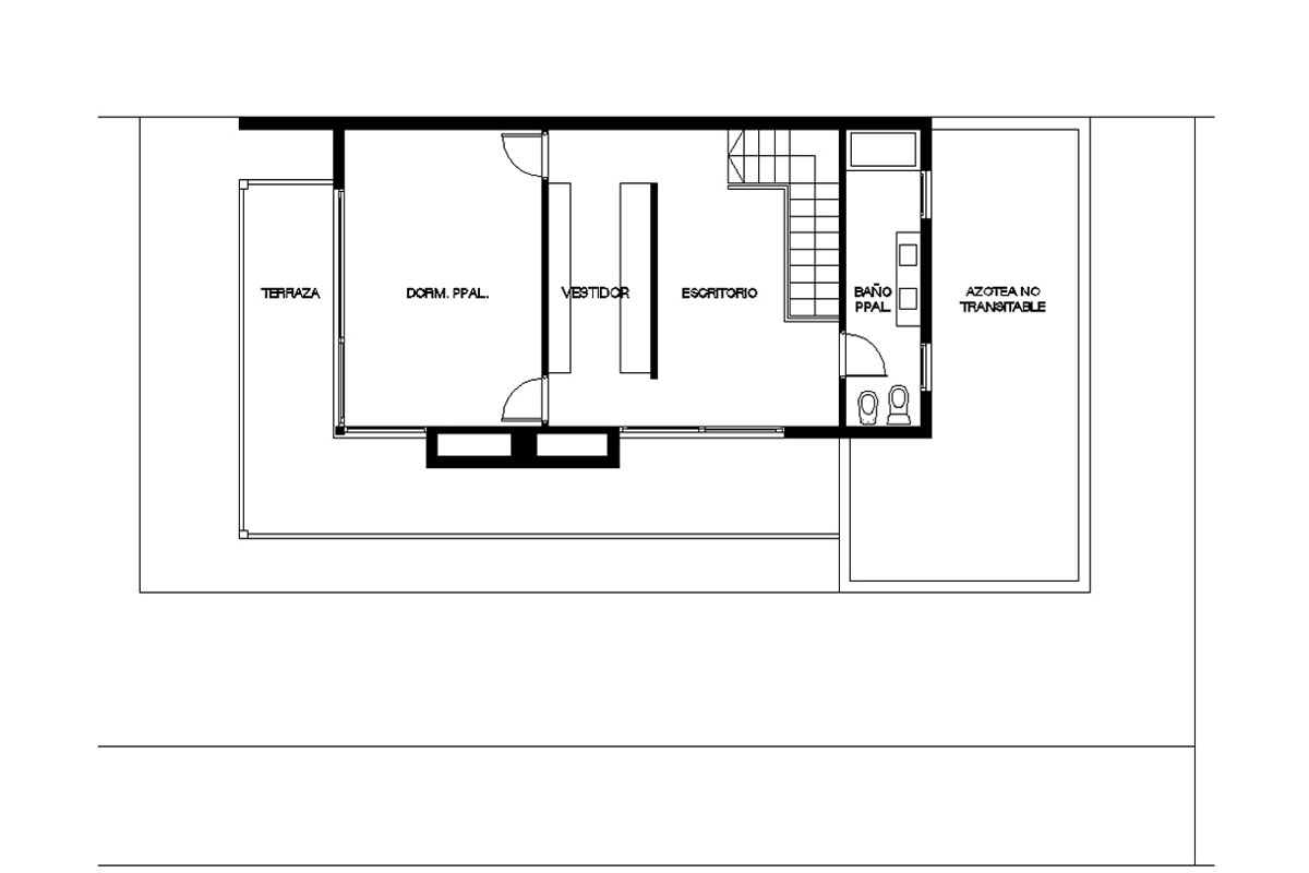
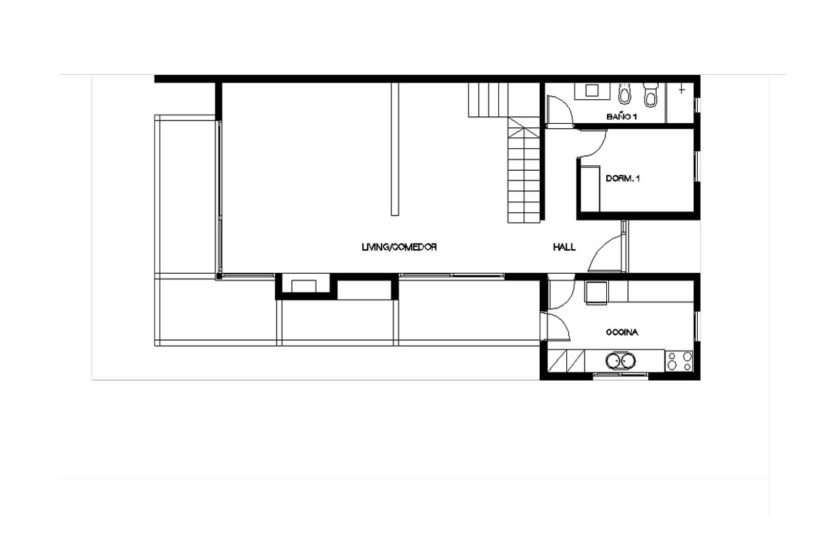
Se trata de una vivienda familiar sobre el lago en Parque Miramar.La idea de la casa es tener la sensación de estar en un barco navegando ya que a sus propietarios les gusta mucho el mar y con esas vistas recrear esa idea.Otra idea fundamental ya que se trata de una familia de dos personas adultos es de que los espacios sean lo más integrados posibles y de que todos puedan disfrutar de las buenas vistas.Construcción 140 m2
Info
- Fecha : Año 2006
- Cliente : Fernando Garcia y Santos y Jimena Taboada
- Estatus : Terminado
- Ubicación : Parque Miramar, Lago Seco Illa








