Inicio
Compartir
Laura
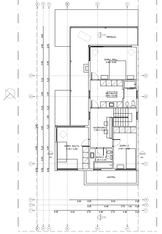
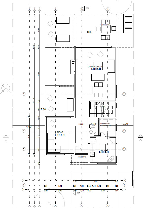
Este proyecto fue construido en etapas según los requerimiento del cliente.Se destaca el acceso revestido en madera que continua hacia el interior.Terminadose en el año 2021
Info
- Fecha : Comienzo obra 2017
- Cliente : Laura
- Estatus : En construccion
- Ubicación : Lagos Parque Miramar



